新築分譲住宅 千葉市若葉区若松町 4LDK 全1棟
情報更新日: 2025/09/23
価 格
3,190万円
(税込)
所在地
千葉県千葉市若葉区若松町
交 通
総武本線「都賀」駅 徒歩20分
千葉都市モノレール「みつわ台」駅 徒歩30分
総武本線「四街道」駅 徒歩29分
新築分譲住宅 千葉市若葉区若松町 4LDK 全1棟
(税込)
総武本線「都賀」駅 徒歩20分
千葉都市モノレール「みつわ台」駅 徒歩30分
総武本線「四街道」駅 徒歩29分
| 所在地 | 千葉県千葉市若葉区若松町 | ||
|---|---|---|---|
| 交通 |
総武本線「都賀」駅 徒歩20分 千葉都市モノレール「みつわ台」駅 徒歩30分 総武本線「四街道」駅 徒歩29分 |
||
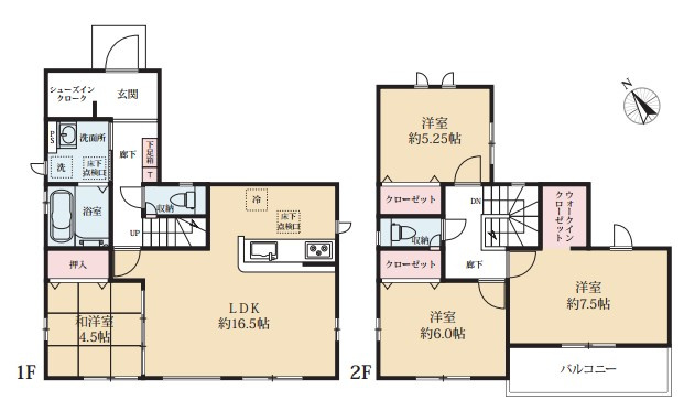
| 間取 | 4LDK | ||
| 土地面積 | 132.55㎡(40.09坪) | 建物面積 | 壁芯99.99㎡(30.24 坪) |
| 販売戸数 | 1区画 | 総戸数 | 1区画 |
| 構造・規模 | 木造2階建 | 築年・入居 | 2025年11月 |
| バルコニー | -- | 建物現況 | 建築中 |
| 建築確認番号 | 第HPA-25-08665-1号 | 駐車スペース | 2台 |
| 引渡時期 | 相談 | ||
| 地目 | 宅地 | 用途地域 | 第一種低層住居専用 |
| 建ぺい率 | 50% | 容積率 | 100% |
| 都市計画 | 市街化区域 | 権利種類 | 所有権 |
| 接道 | 方向:北 種別:私道 幅員:5.9m | 小学校区 | 千葉市立若松小学校 |
| 中学校区 | 千葉市立山王中学校 | 取引態様 | 専任媒介 |
| 設備 | 南面バルコニー / フローリング / 琉球畳 / 玄関ポーチ / 玄関ホール / 耐震構造 / 長期優良住宅 / 耐風構造 / ホルムアルデヒド対策 / 更新対策 / 省エネルギー対策 / 劣化対策 / ベタ基礎 / 専有面積30坪以上 / 築2年以内 / 南向き / 2面採光 / 南面4室 / LDK15帖以上 / リビングの隣和室 / 和室 / 駐輪場 / 駐車2台可 / バイク置場 / 対面式キッチン / 3口以上コンロ / キッチンに窓 / キッチン未使用 / バス・トイレ別 / 浴室1坪以上 / オートバス / 追焚機能浴室 / 浴室乾燥機 / 浴室に窓 / トイレ2ヶ所 / トイレ未使用 / 洗面所独立 / 三面鏡付洗面化粧台 / シャワー付洗面台 / 高機能トイレ / クロゼット / クロゼット3ヶ所 / ウォークインクロゼット / シューズボックス / ウォークインシューズクロゼット / 玄関収納 / 押入 / 床下収納 / 収納豊富 / 2駅利用可 / 2沿線利用可 / 3駅以上利用可 / 整形地 / 閑静な住宅地 / 緑豊かな住宅地 / バス停徒歩3分以内 / 都市近郊 / 眺望良好 / 通風良好 / 陽当り良好 / 住宅性能保証付 / スクール向け / SOHO向け / 女性向け / 新婚さん向け / ファミリー向け / キャンペーン / フラット35Sに対応 / 小型犬可 / 大型犬可 | ||
| その他制限事項 | 法令上の制限:景観法 都市再生特別地区 日影制限有 、法令上の制限その他:法第22条区域、絶対高さ10m、宅地造成等工事規制区域 | ||
Copyright(C)2026 House Concierge. All Rights Reserved