中古マンション 稲毛パークハウスG棟 112号室
情報更新日: 2026/03/27
価 格
1,580万円
所在地
千葉県千葉市稲毛区園生町
交 通
総武本線「稲毛」駅 徒歩19分
千葉都市モノレール「穴川」駅 徒歩16分
京成千葉線「京成稲毛」駅 徒歩23分
中古マンション 稲毛パークハウスG棟 112号室
総武本線「稲毛」駅 徒歩19分
千葉都市モノレール「穴川」駅 徒歩16分
京成千葉線「京成稲毛」駅 徒歩23分
| 交通 |
総武本線「稲毛」駅 徒歩19分 千葉都市モノレール「穴川」駅 徒歩16分 京成千葉線「京成稲毛」駅 徒歩23分 |
||
|---|---|---|---|
| その他交通 | -- | ||
| 所在地 | 千葉県千葉市稲毛区園生町 | ||
| 物件種目 | 中古マンション | ||
| 価格 | 1,580万円 | ||
| 管理費等 | 7,900円(税込み) | 修繕積立金 | 1万1,200円 |
| 借地期間・地代(月額) | -- | 権利金 | -- |
| 敷金/保証金 | -- | 維持費等 | -- |
| その他一時金 | -- | ||
| 諸費用 | -- | ||
| 建物名・部屋番号 | 稲毛パークハウスG棟 112号室 | ||
| 備考 | -- | ||
| バス・トイレ | 専用 | ||
| キッチン | -- | ||
| 設備・サービス | エレベーター / 南面バルコニー / フローリング / フローリング張替 / 玄関ホール / 照明器具付き / ダウンライト / 南向き / 南面2室 / 南面リビング / LDK12帖以上 / 駐輪場 / 自走式駐車場 / バイク置場 / システムキッチン / 独立型キッチン / 3口以上コンロ / キッチン未使用 / 給湯 / バス・トイレ別 / 追焚機能浴室 / 浴室未使用 / トイレ未使用 / 洗面台 / 洗面所にドア / 洗面化粧台 / 洗髪洗面化粧台 / 三面鏡付洗面化粧台 / シャワー付洗面台 / 高機能トイレ / 暖房便座 / クロゼット / クロゼット2ヶ所 / シューズボックス / 玄関収納 / 2駅利用可 / 2沿線利用可 / 3駅以上利用可 / 3沿線以上利用可 / 都市近郊 / ペット相談 / 通風良好 / 陽当り良好 / 女性向け / 新婚さん向け / ファミリー向け / キャンペーン / 小型犬可 / 猫可 / 内装リフォーム済 / 壁紙貼替済 / リフォーム / 5年以内水回り交換 / 5年以内内装リフォーム / 5年以内その他リフォーム | ||
| その他 | -- | ||
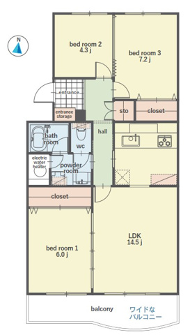
| 間取り | 3LDK | ||
| 専有面積 | 壁芯68.99㎡(20.86 坪) | バルコニー | 8.32㎡(2.51 坪) |
| 階建/階 | 4階建/1階 | 建物構造 | SRC |
| 築年月 | 1974年1月(築52年) | 総戸数 | 564戸 |
| 駐車場 | 空有:敷地内 月額料金/2,200円(税込み) | バイク置き場 | 空有/月額料金 300円(税込み) |
| 駐輪場 | 空有 | ペット | 相談 |
| 土地権利 | 所有権 | ||
| 管理形態/管理員の勤務形態 | 全部委託/日勤 | 国土法届出 | 不要 |
| 条件等 | -- | 現況 | 空室 |
| 引渡可能時期 | 相談 | 取引態様 | 仲介 |
| 小学校区 | 千葉市立園生小学校 | 中学校区 | 千葉市立小中台中学校 |
Copyright(C)2026 House Concierge. All Rights Reserved