新築戸建 千葉市中央区村田町 1号棟 全3棟


価 格

3,890万円

(税込)

所在地
千葉県千葉市中央区村田町
交 通

内房線「浜野」駅 徒歩14分

内房線「八幡宿」駅 徒歩24分

総武線「千葉」駅 バス31分

京成千原線「学園前」駅 徒歩45分

京葉線「蘇我」駅 バス13分

担当者 :

■電動シャッター付き♪ ■JR内房線「浜野」駅 徒歩14分の好立地♪ ■カースペース1台♪ ■敷地約27.49坪・南側接道で日当たり良好♪ ■LDKは広々15.3帖、家族が集まる快適空間♪♪ ■各居室クローゼット付き♪ ■周辺にスーパー・ドラッグストア利便施設充実♪ ~ご成約時、プレゼントキャンペーン実施中!!~
■新築戸建 千葉市中央区村田町 1号棟 全3棟の設備・周辺施設
所在地 千葉県千葉市中央区村田町
交通

内房線「浜野」駅 徒歩14分

内房線「八幡宿」駅 徒歩24分

総武線「千葉」駅 バス31分

京成千原線「学園前」駅 徒歩45分

京葉線「蘇我」駅 バス13分

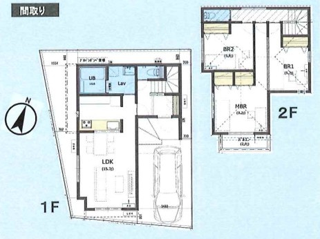
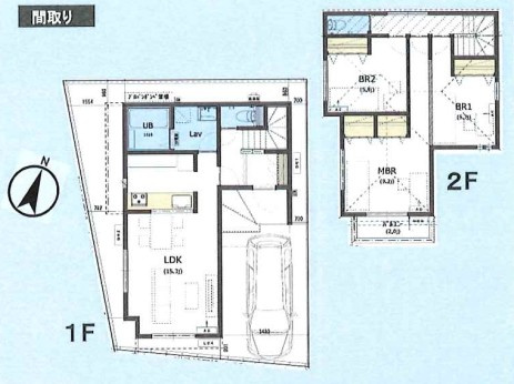
間取 3LDK
土地面積 90.89㎡(27.49坪) 建物面積 壁芯88.19㎡(26.67 坪)
販売戸数 3戸 総戸数 3戸
構造・規模 木造2階建 築年・入居 2025年12月
バルコニー -- 建物現況 建築中
建築確認番号 第25UDI1W建06405号 駐車スペース 1台
引渡時期 相談
地目 宅地 用途地域 第一種住居
建ぺい率 60% 容積率 200%
都市計画 市街化区域 権利種類 所有権
接道 方向:南 種別:公道 幅員:4.4m 小学校区 千葉市立生浜西小学校
中学校区 千葉市立生浜中学校 取引態様 専任媒介
設備 南面バルコニー / フローリング / 全居室フローリング / 玄関ポーチ / 玄関ホール / 省エネルギー対策 / オープン外構 / 築2年以内 / 南向き / 南面3室 / 2面採光 / LDK15帖以上 / 寝室8帖以上 / 駐輪場 / バイク置場 / システムキッチン / 対面式キッチン / オープンキッチン / 3口以上コンロ / キッチンに窓 / キッチン未使用 / 給湯 / バス・トイレ別 / 浴室1坪以上 / オートバス / 追焚機能浴室 / トイレ未使用 / 洗面所独立 / シャワー付洗面台 / 高機能トイレ / 暖房便座 / クロゼット3ヶ所 / ウォークインクロゼット / シューズボックス / 2駅利用可 / 2沿線利用可 / 3駅以上利用可 / 田園風景 / 都市近郊 / 市街地が近い / 周辺交通量少なめ / スーパーが近い / 眺望良好 / 通風良好 / 陽当り良好 / 女性向け / 新婚さん向け / ファミリー向け / 小型犬可 / 大型犬可 / 猫可 / 南側道路面す
その他制限事項 法令上の制限その他:法22条区域